Zum Hauptinhalt springen

OOO "Диамант Райзен" encofrados Wolna mini

EUR 450,00

sin impuestos más gastos de envío

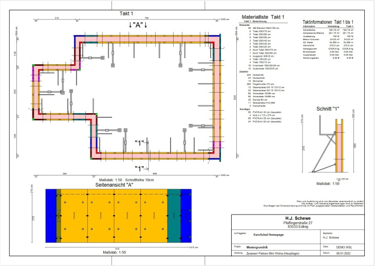
Rodamiento de encofrado para EuroSchal. Ahora debe añadir un programa de encofrado Muro versión completa o actualización.