Zum Hauptinhalt springen

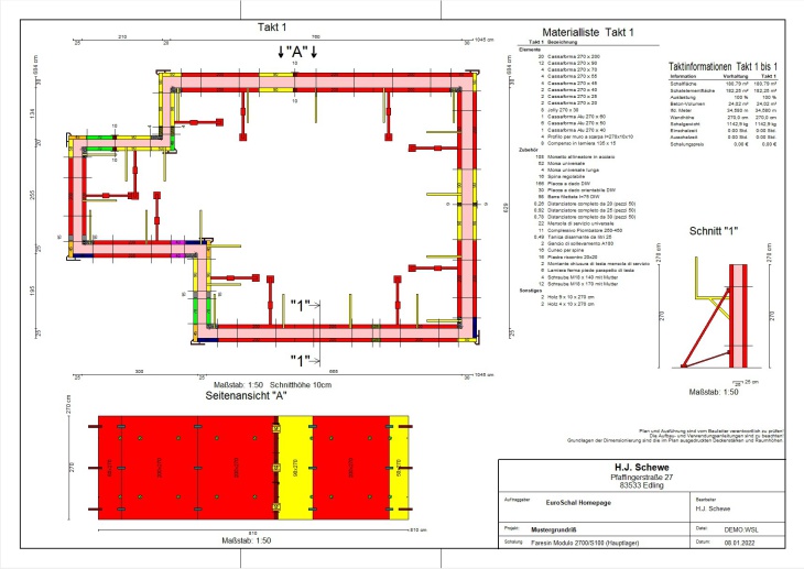
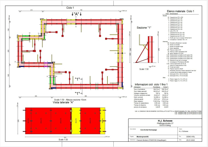
Faresin, encofrado Modulo 2700-S100

EUR 450,00

sin impuestos más gastos de envío

Rodamiento de encofrado para EuroSchal. Ahora debe añadir un programa de encofrado Muro versión completa o actualización.