Zum Hauptinhalt springen

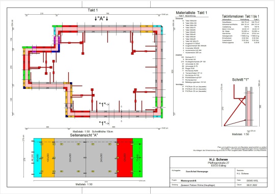
Diamantreisen Russia, Wolna Coffrage

EUR 450,00

hors taxes plus frais de port

Entrepôt de coffrage pour EuroSchal. Vous devez maintenant encore ajouter un programme de coffrage mural en version complète ou mise à jour.